緣起
曾先生家族和睦,以老奶奶為生活中心,兒孫承歡膝下,在現今社會相當難得。她的女兒孫子們經常來家裡聚會,因此想搬到台北市郊蓋一棟比較寬敞的住宅,成為全家族生活的場域。他們覓得陽明山這個基地,慎重地委託我們規劃設計他們的住家。
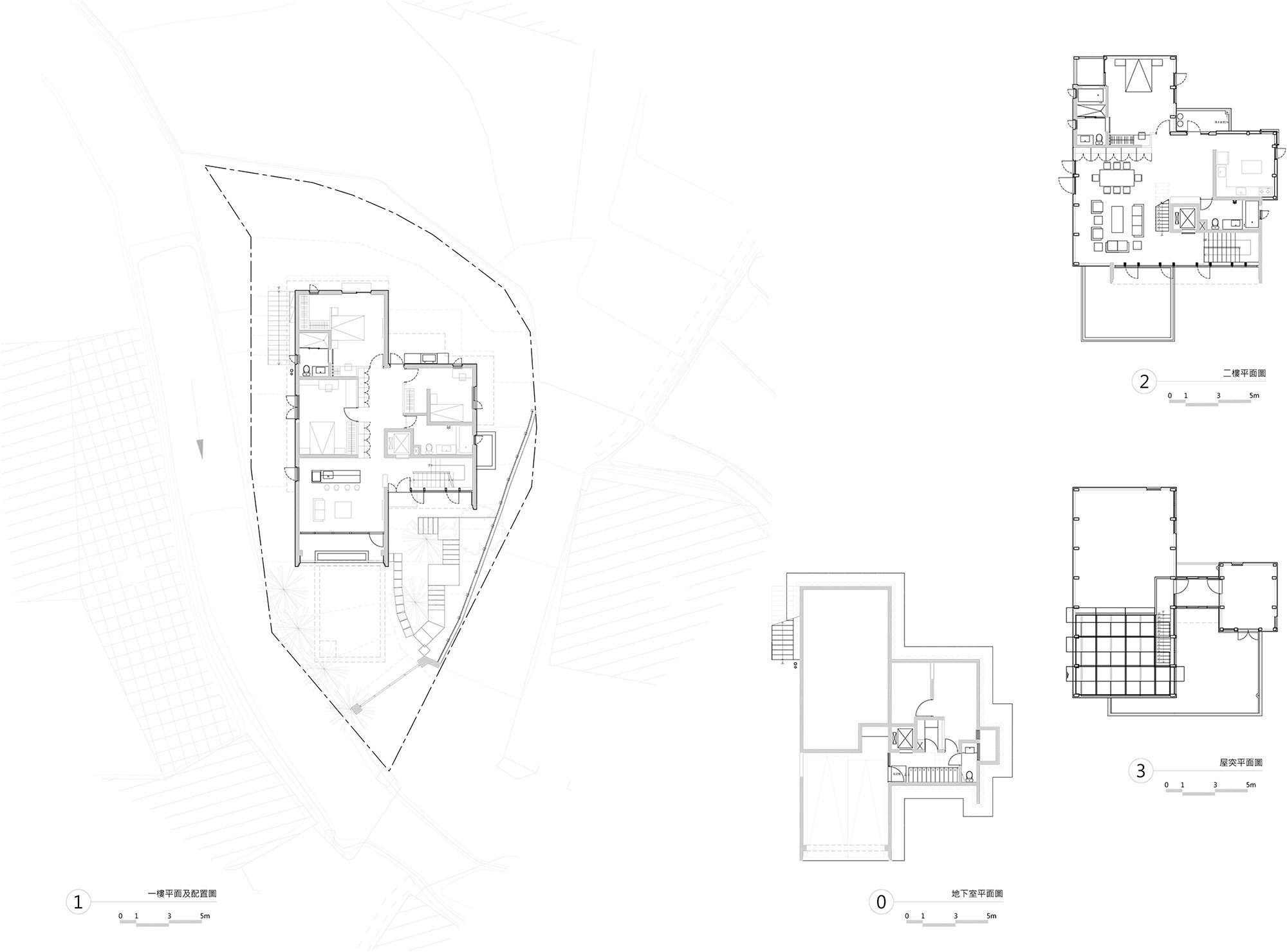
基地不規則形狀
基地位在台灣北部陽明山仰德大道的巷子內,地形北高南低,基地呈不規則形狀,面積約455平方公尺。基地南方有棵高聳的大樟樹,西邊有條小溪流經過。
對應微氣候的建築設計考量
陽明山冬季低溫多雨,且基地座落於日照較不充足的谷地環境,氣候成為本案最重要的課題,我們藉由構材的選用、開窗的設計及空間機能座向的安排,來對應這裡的微氣候。冬季的保溫措施,包括開窗面積比例較低、外牆牆面有作斷熱設計,室內土壁裝修可吸濕,加上運用外牆節能系統,包括RC、木構、屋面的外牆塗料或材質處理,都能大幅降低熱傳透率(Ui)。本案的外殼複式牆,熱傳透率僅一般RC結構的1/6左右,可保持室內比較恆溫的狀態,進而避免室內結露,防止建材發霉。此外,二樓屋頂的木樑端部有做斷水設計,降低日曬雨淋影響,增加木材的耐久性,而窗戶搭配窗台板便於洩水、並做好斷水,可使窗戶較不會滲水,雨後也不易汙染外牆牆面。
創造建築與環境融合
曾宅為地下一層、地上兩層,RC與木構的混合構造建築物。建築量體沿著小溪延展,地下室配合地形變化,半崁在山坡。高低錯落的雙斜屋頂,以及閣樓及露天平台設計,希望呈現出住宅與環境融合的氛圍。在空間規劃上,一樓為子女房間、客房及起居室,二樓是主臥室、客廳以及廚房。考量大家族親戚聚會需求,二樓客廳必須提供足夠寬敞、挑高舒服的活動空間。除了二樓主樓層有設計廚房,一樓起居室也包含一個小廚房,方便不同世代同居時,能各自擁有獨立的生活空間。兩層樓的南側皆設計了露天平台,可以走出來觀賞前院特意保留的大樟樹。南向光線充足,樹蔭能遮擋過強的光線,垂直動線也特別安排在南側,緊鄰著大樟樹,正面以大片玻璃帷幕迎接陽光與綠蔭,是全家所共享的綠意景觀。
附註:本文使用照片,由黃錫欽、周玫竺二位友人熱心提供,特此致謝!
也悼念善女子周玫竺,曾宅是她姨丈、阿姨的家。
